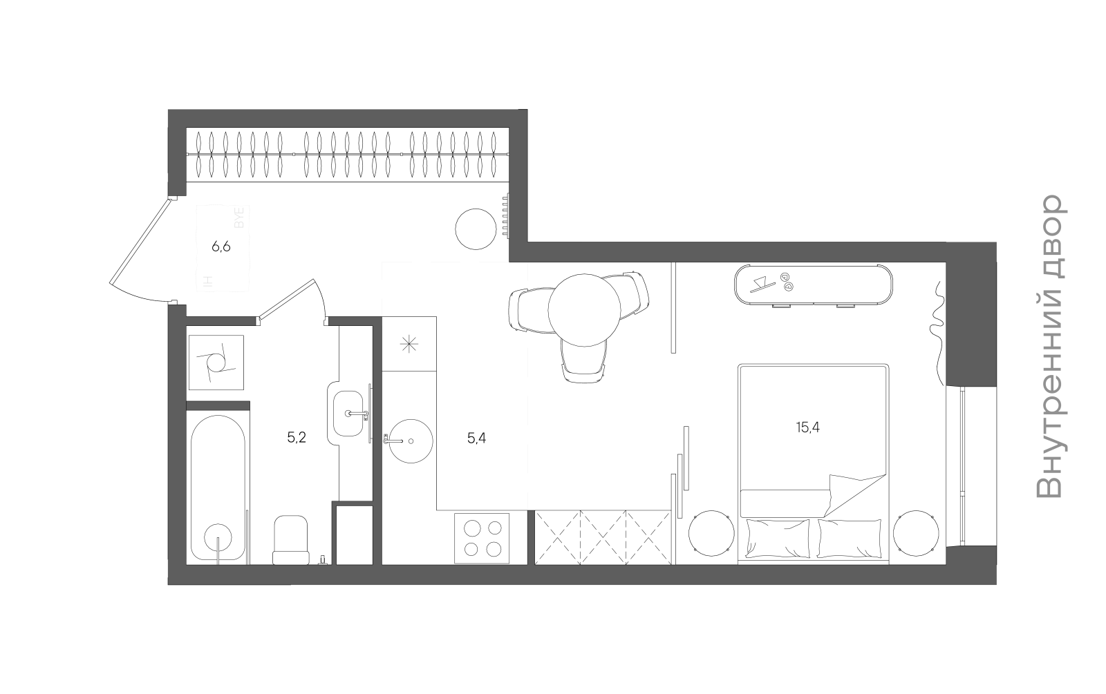
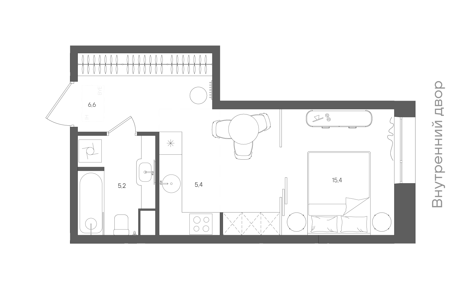
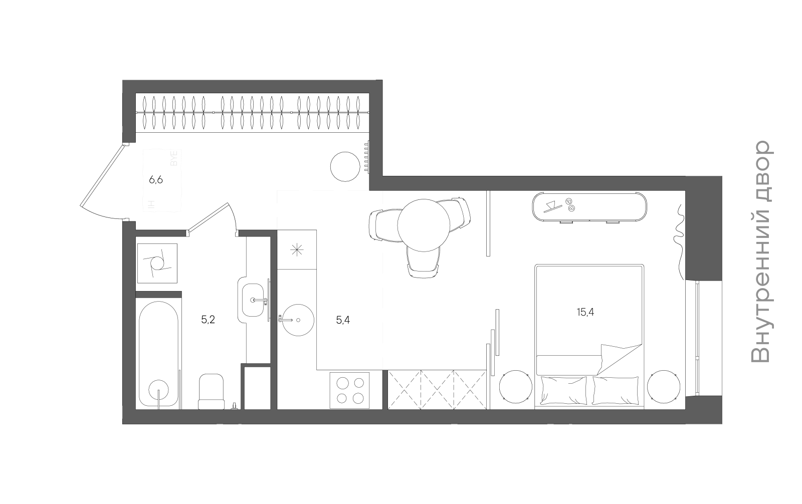
Студия 32.60 м², B-066

СТОУН Райз

Бизнеc+

Римская
3 мин
Серп и Молот
3 мин
Римская
1 мин
Серп и Молот
1 мин
Изображение STONE

194

Квартиры в продаже

Записаться на встречу

Наши эксперты будут рады помочь в выборе лучшего жилья и ответить на вопросы