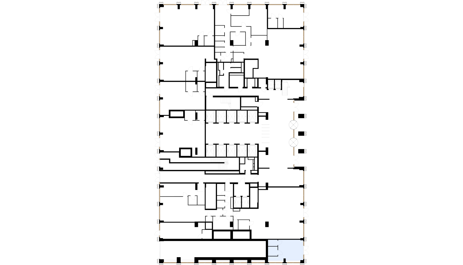
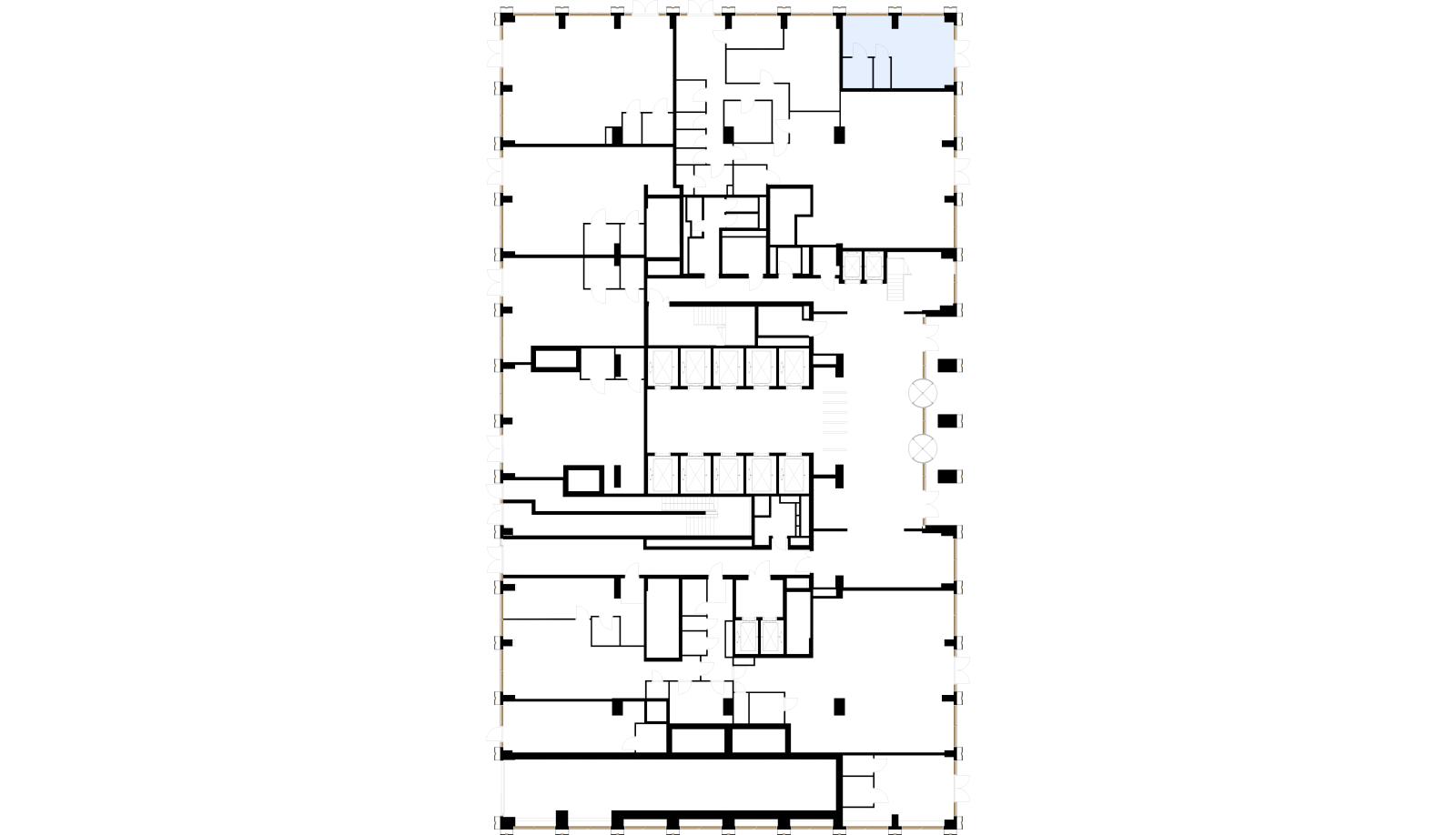
Ритейл, 29.20 м² в Ритейл STONE Ходынка 1

Ритейл STONE Ходынка 1

Ритейл в премиальном офисном квартале

ЦСКА
1 мин
Изображение STONE

25

Офисов в продаже

Записаться на встречу

Наши эксперты будут рады помочь в выборе лучшего жилья и ответить на вопросы